
Â
📌 Pourquoi bien lire un plan de vente immobilier ?
Comprendre un plan de vente vous permet de mieux vous projeter dans votre futur logement et d’éviter toute mauvaise surprise à la livraison. Une lecture attentive vous assure un aménagement optimal et une anticipation des éventuelles contraintes techniques.
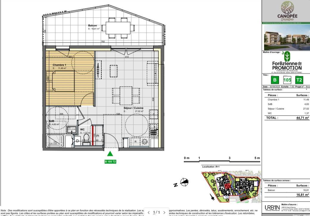
Lorsque vous achetez un bien en VEFA (Vente en l’État Futur d’Achèvement), il est essentiel de savoir dĂ©crypter le plan de vente immobilier. Ce document technique contient des informations prĂ©cieuses qui vous aideront Ă mieux visualiser votre futur logement et Ă anticiper son amĂ©nagement. Voici les principaux Ă©lĂ©ments Ă analyser sur un plan de vente.
1. Dimensions et surfaces
Chaque pièce doit être clairement identifiée avec sa superficie en mètres carrés (m²). Pour les logements en copropriété, la Loi Carrez garantit une mesure précise des surfaces habitables. Le plan doit également comporter une échelle, le nom de chaque pièce et sa localisation dans l’immeuble ou la résidence.
2. Orientation et implantation
L’orientation d’un logement influence la luminosité et le confort thermique. Une rose des vents est souvent présente sur le plan pour indiquer l’exposition du bien. Cette donnée est essentielle pour anticiper l’ensoleillement des pièces et les vues extérieures.
3. Surfaces des annexes et espaces privatifs
Les plans de vente précisent également la superficie des annexes et espaces privatifs, tels que :
-
Caves
-
Parkings
-
Jardins
-
Accès aux parties communes
Ces informations sont importantes pour évaluer le potentiel de stockage et de stationnement du bien.
4. Cotes et altimétries
Les cotes et altimétries permettent de connaître :
-
La hauteur sous plafond
-
La disposition et la taille des ouvertures (portes, fenĂŞtres)
-
L’emplacement des prises électriques et des interrupteurs
Ces éléments sont cruciaux pour anticiper l’aménagement et l’installation des équipements.
5. Symboles et codes graphiques
Un plan de vente comporte différents symboles pour distinguer les éléments structurels et techniques :
-
Traits épais et foncés : murs porteurs
-
Zone jaune hachurée : isolation thermique
-
Éléments en bleu : cloisons intérieures
-
Parties blanches : gaines techniques (conduits d’eaux usĂ©es – EU, d’eaux pluviales – EP, ventilation 3CE)
-
Traits noirs fins et arrondis : sens et débattement des portes et fenêtres
-
Pointillés : équipements techniques non fournis et espaces de manœuvre PMR (Personnes à Mobilité Réduite)
6. Espaces de manœuvre PMR
Les espaces de manœuvre PMR sont obligatoires dans les logements neufs et récents soumis à la réglementation d’accessibilité. Ils garantissent le passage d’un fauteuil roulant, notamment autour du lit, dans la salle de bains, la cuisine et les toilettes.
7. Notice descriptive complémentaire
Les matériaux et équipements spécifiques (revêtements, menuiseries, équipements sanitaires, etc.) ne sont pas détaillés sur le plan mais sont précisés dans la notice descriptive du logement.
Besoin d’accompagnement pour votre projet immobilier ?
Chez Forézienne de Promotion, nous vous accompagnons à chaque étape de votre achat immobilier. Contactez-nous pour plus d’informations !
Retrouvez tous nos programmes neufs : Programmes immobilier de logements neufs à Saint-Etienne, Saint-Chamond, la Talaudière 42



